본문 바로가기
주메뉴 바로가기
HOME
SITE MAP
CONTACT US
소개
금호스틸하우스
회사개요
사업분야
부서소개
오시는 길
스틸하우스정보
기본정보
타구조와의 비교
시공과정
시공업체 선정정보
금호스틸하우스
시공갤러리
설계갤러리
단지개발 및 분양
스틸하우스동영상
스틸하우스동영상
전자카다록
고객센터
공지사항
고객문의
A/S 신청
금호스틸하우스
시공갤러리
설계갤러리
단지개발 및 분양
설계갤러리
HOME > 금호스틸하우스 >
설계갤러리
20평형
30평형
40평형
50평형
60평형
게시물 보기
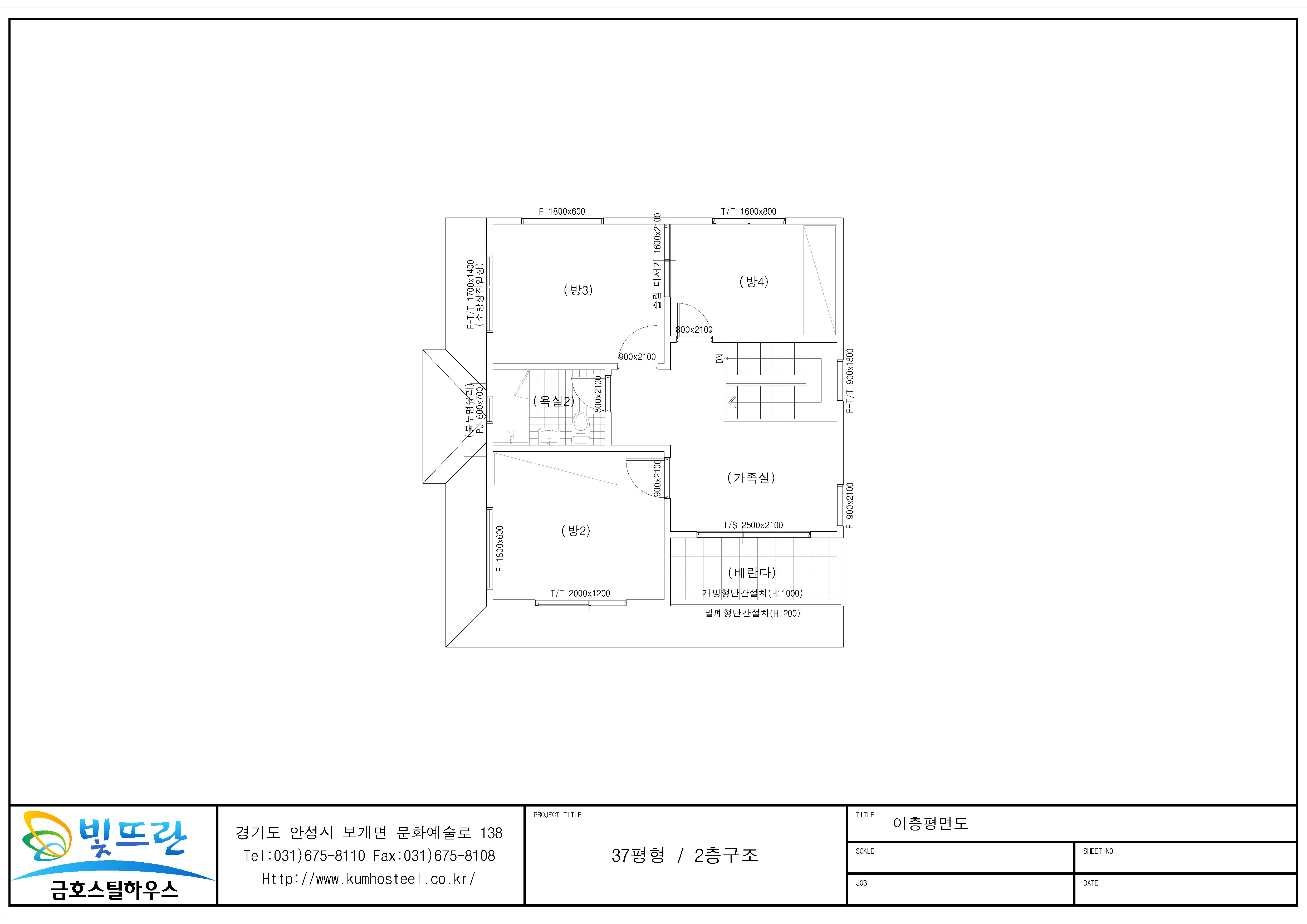
30평형(3)
등록일
2024-06-20
조회수
127
목록
비밀번호를 입력하세요.
확인